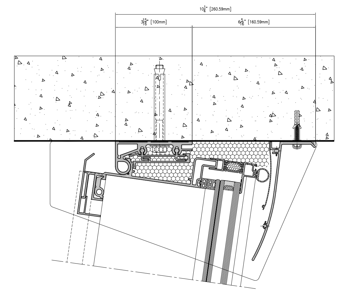
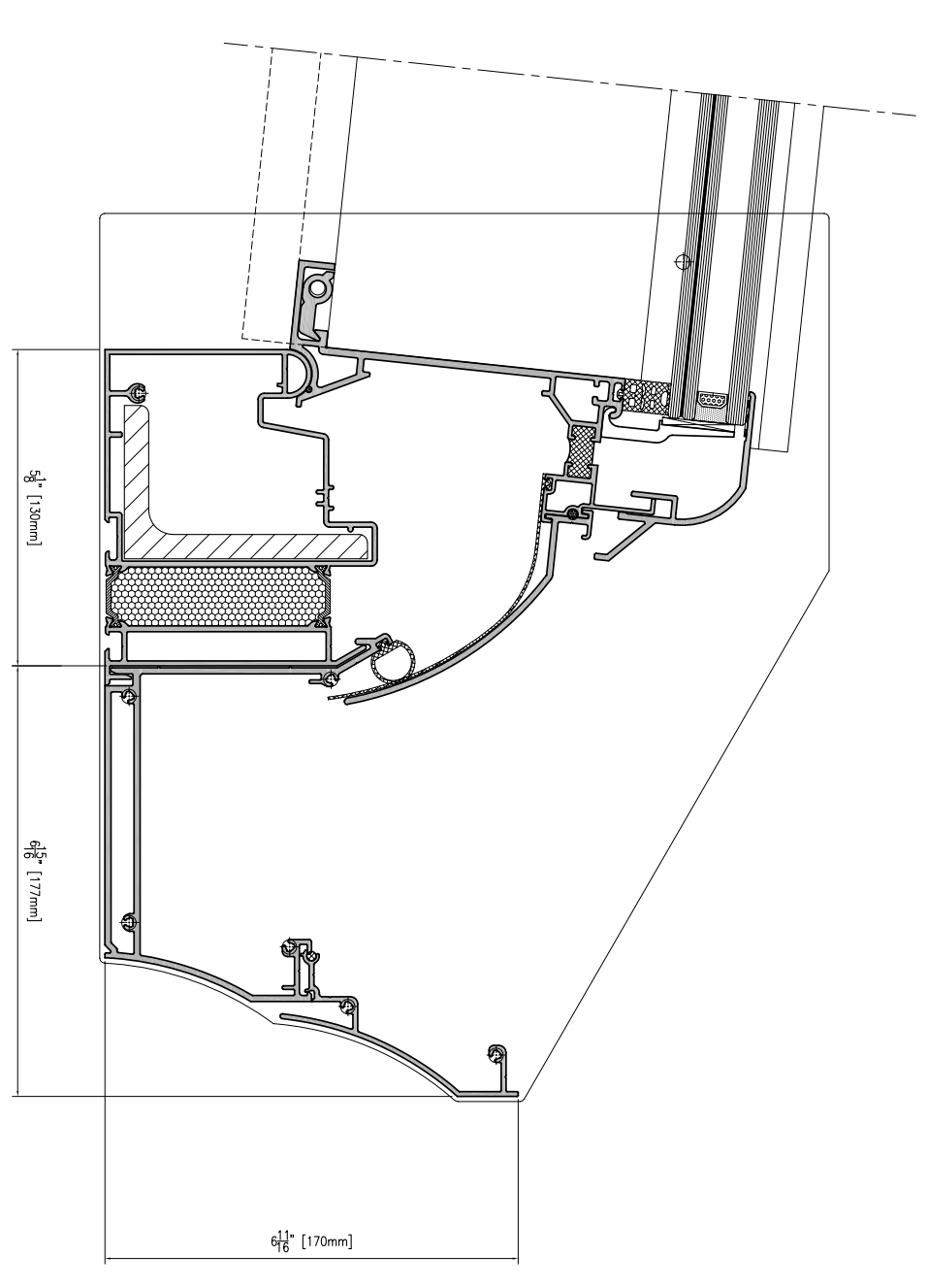
S50

Sunroom

  1. Home
  2. Products
  3. Sunroom
  4. Sunroom (S50)

Contact Info

Technical Data

Request a Free Consultation

Let everyone use good doors and windows