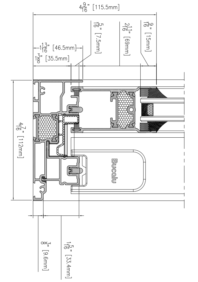
RSW113P

Slim Frame Sliding Window

  1. Home
  2. Products
  3. Windows
  4. Slim Frame Sliding Window (RSW113P)

Technical Data

Request a Free Consultation

Let everyone use good doors and windows